Casa prefabricada de acero Pref-002 «Casa Moderna»
Vivienda prefabricada de diseño contemporáneo tipo barn-house con fachada panorámica de vidrio y estructura de acero galvanizado. Revestimiento exterior en chapa metálica perfilada con acentos en madera natural. Distribución funcional con 2 dormitorios, baño completo y cocina-salón abierto. Ideal como residencia principal, casa de campo o alojamiento turístico.
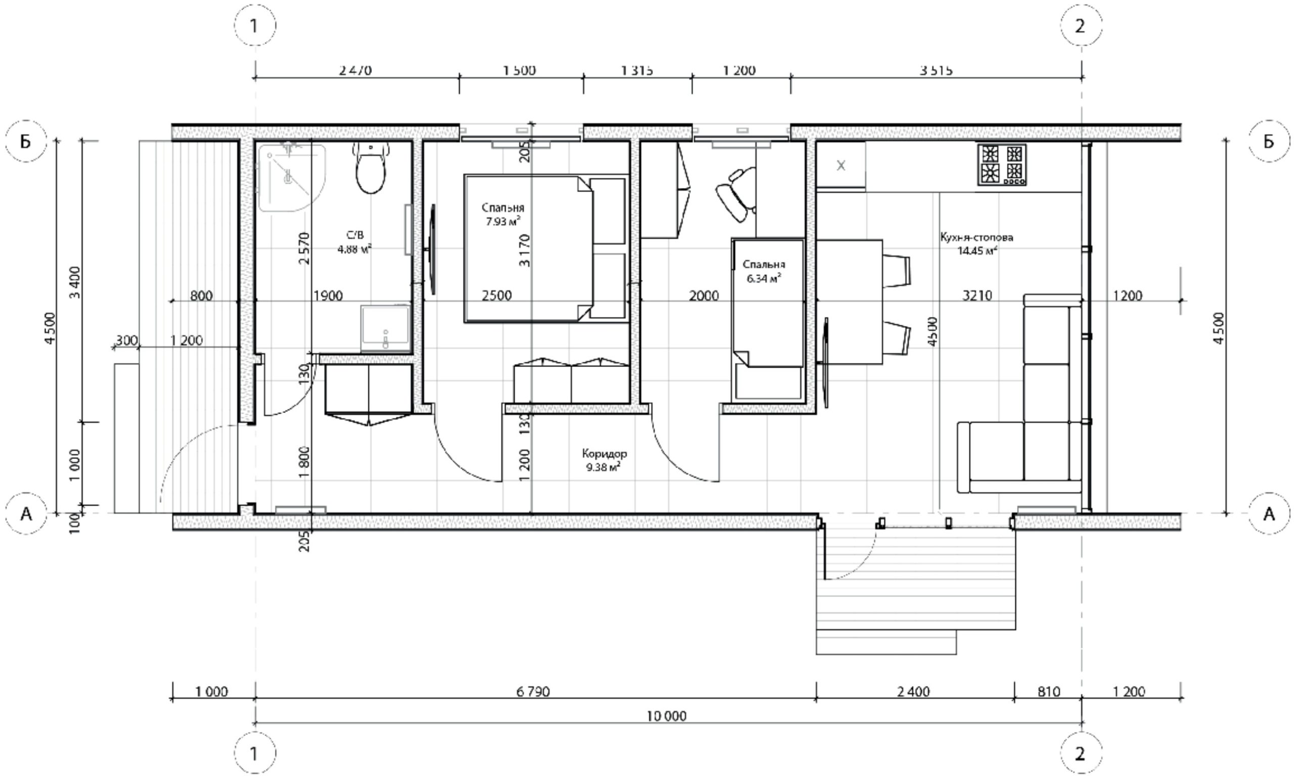
Distribución
- Cocina-salón-comedor: 14,45 m² — espacio abierto con ventanal panorámico de suelo a techo
- Dormitorio principal: 7,93 m² — con ventana lateral y armario
- Dormitorio secundario: 6,34 m² — con ventana y espacio para escritorio
- Baño completo: 4,88 m² — con cabina de ducha, inodoro, lavabo y calentador
- Pasillo: 9,38 m² — distribuidor con acceso a todas las estancias
- Terraza cubierta: con acceso desde el salón
Especificaciones técnicas
| Superficie útil | 45 m² |
| Dimensiones exteriores | 10,0 m × 4,5 m |
| Altura interior | 4,5 m (cresta) / 2,5 m (pared lateral) |
| Estructura | Acero galvanizado en caliente (LSTK) |
| Cubierta | Panel sándwich + chapa metálica perfilada |
| Fachada | Chapa metálica perfilada + revestimiento madera natural |
| Ventanal panorámico | Vidrio templado de suelo a techo (fachada frontal) |
| Aislamiento | Lana mineral 150 mm (paredes) / 200 mm (cubierta) |
| Habitaciones | 2 dormitorios |
| Baños | 1 completo (ducha + inodoro + lavabo) |
| Plazo de fabricación | 25 días laborables |
| Plazo de montaje | 5–7 días |
¿Qué incluye el kit?
- Estructura portante de acero galvanizado completa
- Paneles de cerramiento exterior con chapa metálica perfilada
- Revestimiento decorativo en madera natural (fachada lateral)
- Cubierta tipo barn-house con aislamiento térmico y acústico
- Ventanal panorámico de vidrio templado (fachada frontal)
- Carpintería exterior: ventanas y puertas correderas de aluminio
- Suelo técnico con aislamiento
- Tabiques interiores con acabado
- Planos técnicos y documentación del proyecto
- Tornillería y elementos de fijación
Proceso de montaje
- Cimentación: Preparación de la base (pilotes o losa, no incluida)
- Estructura: Montaje del esqueleto de acero galvanizado
- Cerramiento: Instalación de paneles, cubierta y fachada
- Acabados: Ventanal panorámico, carpintería, revestimiento madera
¿Necesita más información? Solicite presupuesto personalizado sin compromiso. Realizamos envíos e instalación en toda España.













